Floor Plan Helper.

Your floor plan should work as hard as you do.

Sometimes a home just doesn't flow — and it's not always obvious why. We can review your existing layout, identify what's holding it back, and propose changes that make a real difference to how your home looks and lives.

Already have a base plan from your building designer but want a second opinion? We can review your plans and quickly identify tweaks that will make your home work harder for your family — sometimes all it takes is an hour to spot the changes that make all the difference.

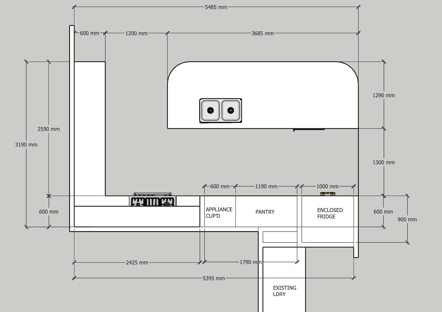
Kitchens and bathrooms - we can’t not talk about these spaces. We can help review your kitchen and bathroom design layout before you hit the confirm button to make sure everything has been considered and the layout if functional, and beautiful.

Depending on your budget, these changes can be minor or significant — but often it's a single wall removed or a space repurposed that transforms the entire feel of a home. Small moves, big impact.

We'll also draft up plans to clearly communicate the design intent to your trades, so everyone is working from the same vision.

Floor plan review.

Want us to analyse your floor plan?

“I thought good design was out of our budget. Suzie Brown Design completely changed my thinking — and our home."

Rachel R. Warana QLD